006. CasaNova
CasaNova entstand aus einer Freundschaft und dem Wunsch, im Bündnerland ein Zuhause für eine junge Familie mit zwei Kids zu schaffen. Ein zeitgenössischer Holzbau, verwurzelt in der Tradition, geschaffen für gesundes Wohnen, nachhaltiges Bauen und ein echtes Zuhause. Ein Haus für das heutige Leben im Bergdorf: verwurzelt, offen und zukunftsfähig.
Ausgangspunkt war der traditionelle Strickbau. Wir haben ihn weiterentwickelt und so interpretiert, wie zeitgemässes Wohnen für eine junge Familie im Dorf aussehen kann. Präzise gefügte Holzbalken bilden einen Doppelstrick, Schicht für Schicht aus Holz|Zellulose|Holz. Ohne Folien, ohne versteckte Zusatzlagen. Ein klares Konstruktionsprinzip, das Struktur, Raum und Atmosphäre zugleich formt.
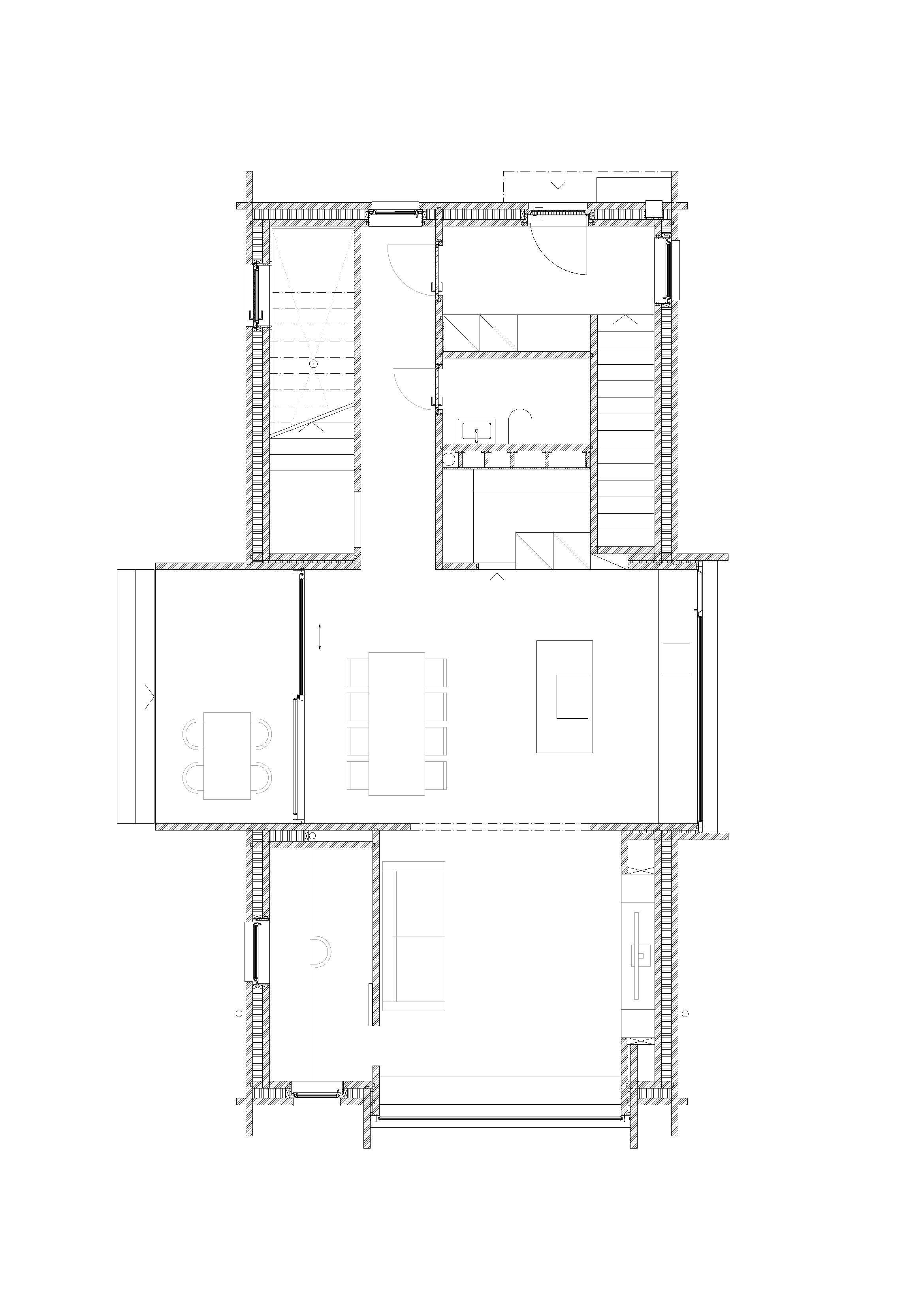
Das Dach aus Valser Naturstein verankert das Haus im Ort. Die massive Strickkonstruktion trägt, gliedert und gestaltet die Räume. Dienende Kerne stabilisieren den Bau und schaffen eine räumliche Dramaturgie von Offenheit und Rückzug.
006. CasaNova
CasaNova entstand aus einer Freundschaft und dem Wunsch, im Bündnerland ein Zuhause für eine junge Familie mit zwei Kids zu schaffen. Ein zeitgenössischer Holzbau, verwurzelt in der Tradition, geschaffen für gesundes Wohnen, nachhaltiges Bauen und ein echtes Zuhause. Ein Haus für das heutige Leben im Bergdorf: verwurzelt, offen und zukunftsfähig.
Ausgangspunkt war der traditionelle Strickbau. Wir haben ihn weiterentwickelt und so interpretiert, wie zeitgemässes Wohnen für eine junge Familie im Dorf aussehen kann. Präzise gefügte Holzbalken bilden einen Doppelstrick, Schicht für Schicht aus Holz|Zellulose|Holz. Ohne Folien, ohne versteckte Zusatzlagen. Ein klares Konstruktionsprinzip, das Struktur, Raum und Atmosphäre zugleich formt.
Das Dach aus Valser Naturstein verankert das Haus im Ort. Die massive Strickkonstruktion trägt, gliedert und gestaltet die Räume. Dienende Kerne stabilisieren den Bau und schaffen eine räumliche Dramaturgie von Offenheit und Rückzug.
























